B2A Info Menu

050 - CIS de Saclay
Orsay

Maître d’ouvrage : SDIS 91
Architectes : Barre Lambot Architectes (mandataire) + B2A (associé)
Paysagiste : Atelier Florent Clier
Bureau d'études : INCET
Lieu : ZAC de Corbeville, Orsay (91)
Programme : construction du Centre d'Incendie et de Secours de Saclay
Surface : 2 400 m²
Montant de travaux : 5 800 000 € HT
Etat : études en cours (PRO)

Images : Johan Hugele
B2A 050 - CIS de Saclay cis-saclay-4-5e
B2A 050 - CIS de Saclay plan-de-situation-050-_-saclay-plan-de-situation-050-saclay_1_2000
B2A 050 - CIS de Saclay photo_site_2
B2A 050 - CIS de Saclay vue-ext_finale_web
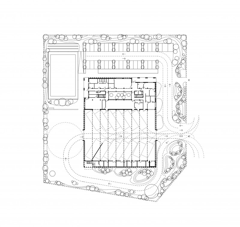
B2A 050 - CIS de Saclay 220705_plan
B2A 050 - CIS de Saclay patio2
B2A 050 - CIS de Saclay 220705_axo_nettoyee_ajap-23
B2A 050 - CIS de Saclay maquette-3-photos-fond-blanc
B2A 050 - CIS de Saclay vue-remise_finale_web-copie