B2A Info Menu

073 - Groupe scolaire de l'Orme au chat
Ivry-sur-Seine

Maître d’ouvrage : Ville d'Ivry-sur-Seine
Architectes : B2A
Bureaux d'études : ANA Ingénierie
Lieu : Ivry-sur-Seine (94)
Programme : rénovation thermique du groupe scolaire de l'Orme au chat
Surface : 8 040 m²
Montant des travaux : 4 000 000 € HT
Etat : chantier en cours

B2A 073 - Groupe scolaire de l'Orme au chat orme-au-chat_serres-maternelles_maquette
B2A 073 - Groupe scolaire de l'Orme au chat orme-au-chat_plan-de-situation
B2A 073 - Groupe scolaire de l'Orme au chat orme-au-chat_photographie-existant
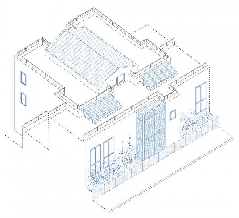
B2A 073 - Groupe scolaire de l'Orme au chat orme-au-chat_serres-maternelles_axo
B2A 073 - Groupe scolaire de l'Orme au chat orme-au-chat_serres-maternelles_coupe
B2A 073 - Groupe scolaire de l'Orme au chat orme-au-chat_perspective-1
B2A 073 - Groupe scolaire de l'Orme au chat orme-au-chat_serres-boulevard_axo
B2A 073 - Groupe scolaire de l'Orme au chat orme-au-chat_perspective-2
B2A 073 - Groupe scolaire de l'Orme au chat orme-au-chat_nomenclature-menuiseries