B2A Info Menu

058 - Maison à la Mouzaïa
Paris

Maître d’ouvrage : privé
Architectes : B2A
Bureau d'études : GRIF Ingénierie
Lieu : Paris (75)
Programme : rénovation et extension d’une maison
Surface : 180 m²
Montant des travaux : 180 000 € HT
Etat : livré en 2023

Photographies : Maxime Verret
B2A 058 - Maison à la Mouzaïa b2a_mouzaia_mverret_0047
B2A 058 - Maison à la Mouzaïa plan-de-situation-1000
B2A 058 - Maison à la Mouzaïa b2a_mouzaia_mverret_0072
B2A 058 - Maison à la Mouzaïa mouzaia
B2A 058 - Maison à la Mouzaïa b2a_mouzaia_mverret_0034
B2A 058 - Maison à la Mouzaïa b2a_mouzaia_mverret_0069
B2A 058 - Maison à la Mouzaïa b2a_mouzaia_mverret_0016
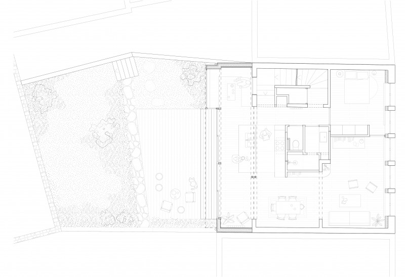
B2A 058 - Maison à la Mouzaïa rue-des-mignottes_pln
B2A 058 - Maison à la Mouzaïa b2a_mouzaia_mverret_0020
B2A 058 - Maison à la Mouzaïa b2a_mouzaia_mverret_0026
B2A 058 - Maison à la Mouzaïa rue-des-mignottes_cpes
B2A 058 - Maison à la Mouzaïa b2a_mouzaia_mverret_0062
B2A 058 - Maison à la Mouzaïa b2a_mouzaia_mverret_0006
B2A 058 - Maison à la Mouzaïa b2a_mouzaia_mverret_0041