B2A Info Menu

043 - 22 logements
Ivry-sur-Seine

Maître d’ouvrage : SADEV 94 - Les Nouveaux Constructeurs
Architectes : B2A (22 logements) + Barre Lambot Architectes (mandataire du lot 3C1)
Paysagiste : Atelier Roberta
Bureau d'études : ECB , ADS, ATPS, Progerep
Lieu : ZAC Ivry Confluence, Ivry-sur-Seine (94)
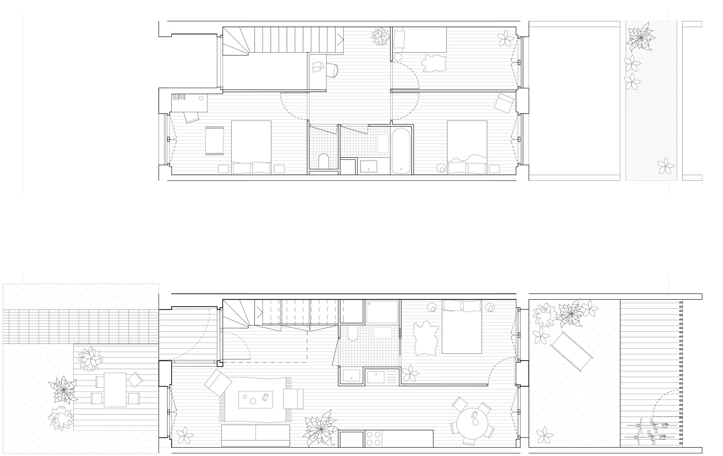
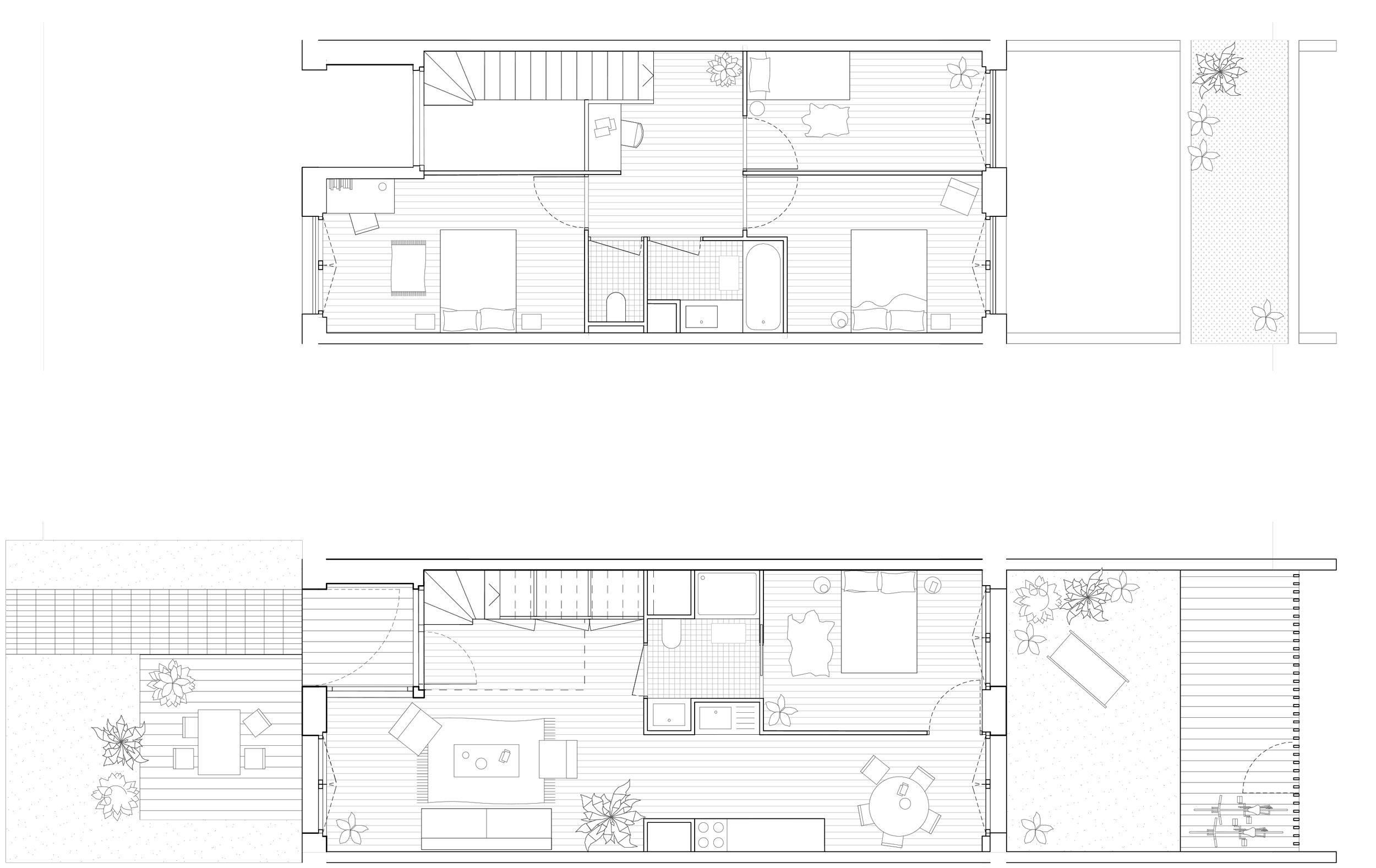
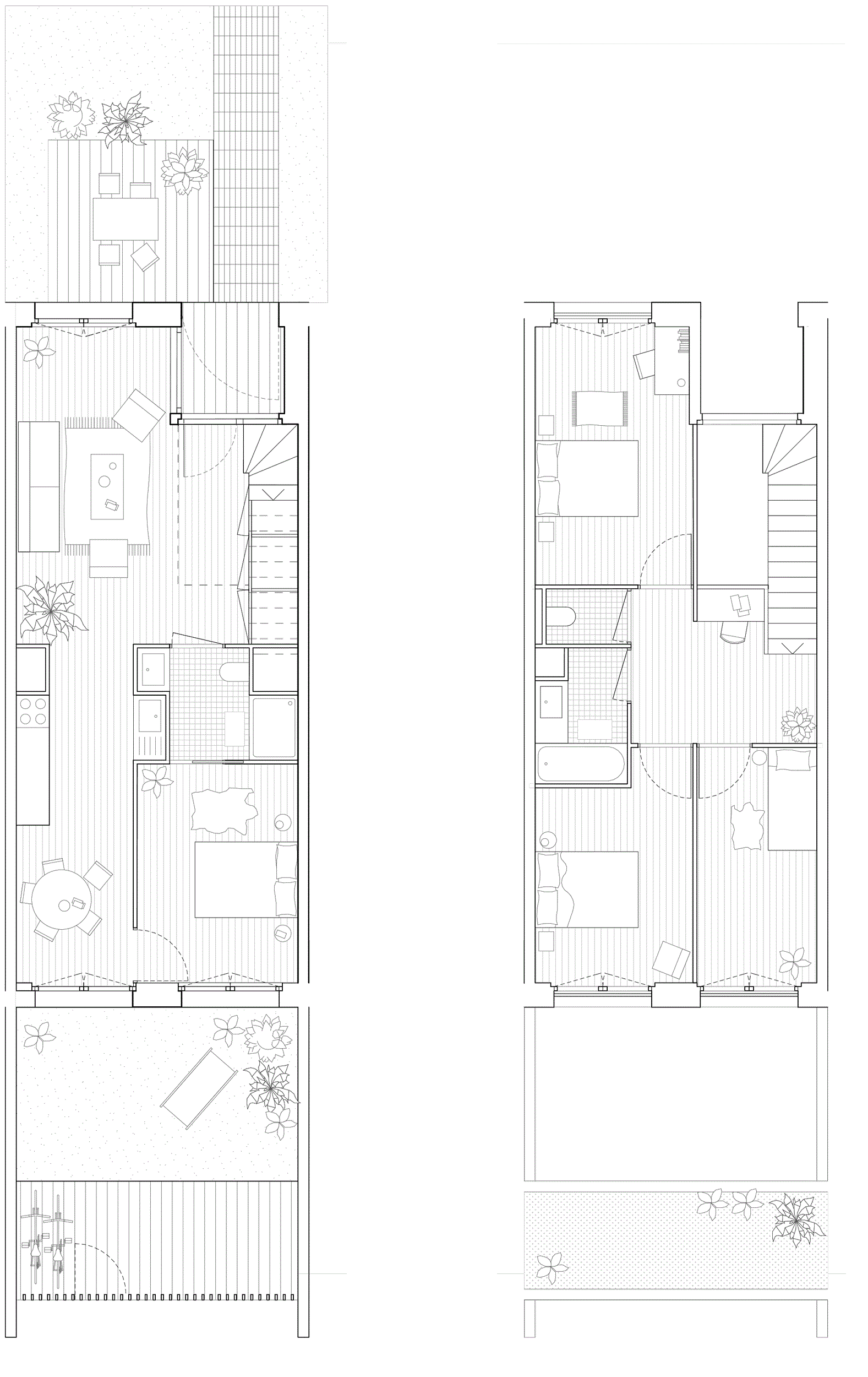
Programme : 22 logements (12 logements sociaux et 10 en accession)
Surface : 1850 m²
Coût : 3 700 000 € HT
État : études en cours (PRO)

Images : Johan Hugele
B2A 043 - 22 logements ivry-logements-4-5e
B2A 043 - 22 logements plan-de-situation-043-ivry_1_2000-copie
B2A 043 - 22 logements dsc00076_r
B2A 043 - 22 logements vue_01_jour_v2
B2A 043 - 22 logements dsc00040_r_web-haute
B2A 043 - 22 logements 043-ivry-typologies-de-logements-1-web
B2A 043 - 22 logements vue_02_jour
B2A 043 - 22 logements dsc00028_r_web
B2A 043 - 22 logements 043-ivry-typologies-de-logements-1-web-copie