B2A Info Menu

041 - Atelier
Paris

Maître d’ouvrage : B2A
Architectes : B2A
Lieu : Paris (75)
Programme : réhabilitation d'un atelier
Surface : 80 m²
Montant des travaux : 50 000 €
Etat : livré en 2022

Photographies : Maxime Verret
B2A 041 - Atelier b2a_agence_bis_mverret_0019
B2A 041 - Atelier rue-de-l-avenir_plan-de-situation_2000
B2A 041 - Atelier b2a_agence_bis_mverret_0013
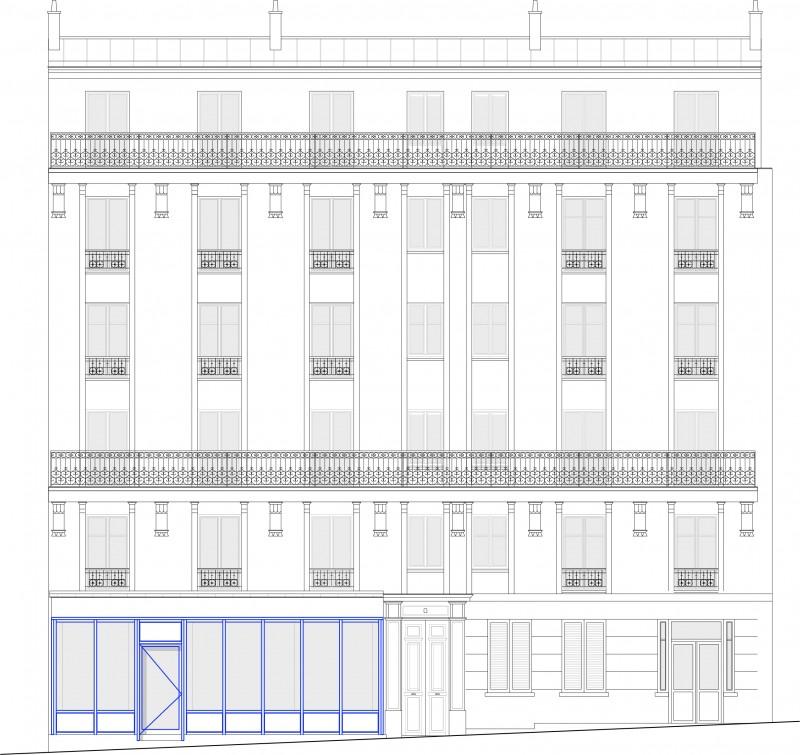
B2A 041 - Atelier facade_100
B2A 041 - Atelier b2a_agence_bis_mverret_0011
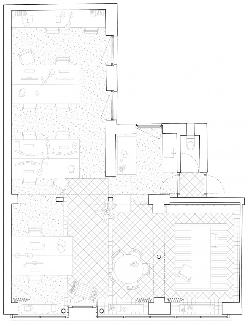
B2A 041 - Atelier plan_50-mobilier
B2A 041 - Atelier b2a_agence_bis_mverret_0009